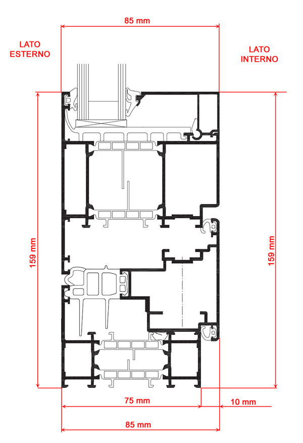
La Serie a Bilico WICONA 75 del Progetto Era è una linea di serramenti in alluminio senza alcuna sagomatura evidente, con l'anta a bilico,realizzbile come bilico verticale o bilico orrizzontale in tal modo si ottiene un ingonbro minimo sia interno che esterno quando la finestra è aperta. Naturalmente la serie Bilico può essere realizzara solamente ad un'anta.
|